A 2 passi da Via Museo
BOLZANO CENTRO STORICO NEGOZIO
Codice interno immobile 601
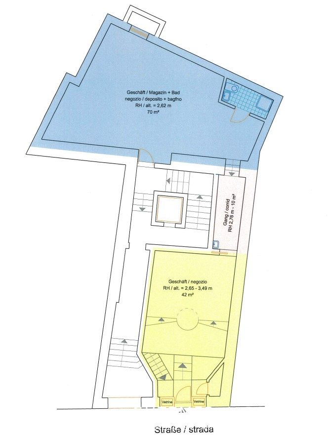
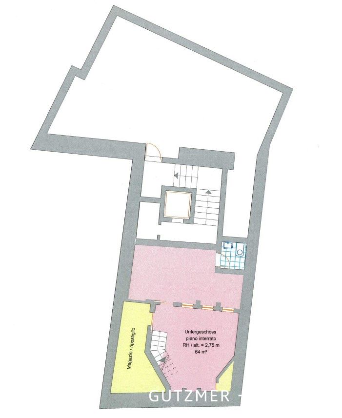
Bolzano centro storico, zona pedonale di forte passaggio, vicino a Via Museo, vendesi negozio + magazzino su 2 livelli, ca. 220m2. Prezzo di vendita Euro 600.000,00. NO IVA. Ottima possibilità di rendita. Ulteriori informazioni e documentazione in agenzia.
Gli immobili qui pubblicati rappresentano solo una parte della nostra offerta immobiliare. Per tutte le ulteriori proposte saremmo lieti incontrarVi di persona.





